+ 34 622 33 05 03

 

      Cabañas robustas y elegantes
 


 cabaña captown resumen de puntos importantes

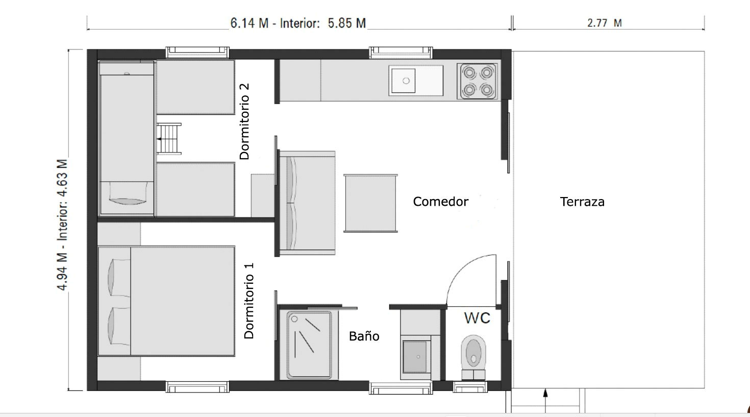
Plano de la cabaña multifuncional 29m²: distribución inteligente para 4-6 personas.

Cada metro cuenta: cómo aprovechamos el espacio al maximo.