+ 34 622 33 05 03

 

      Cabañas robustas y elegantes
 

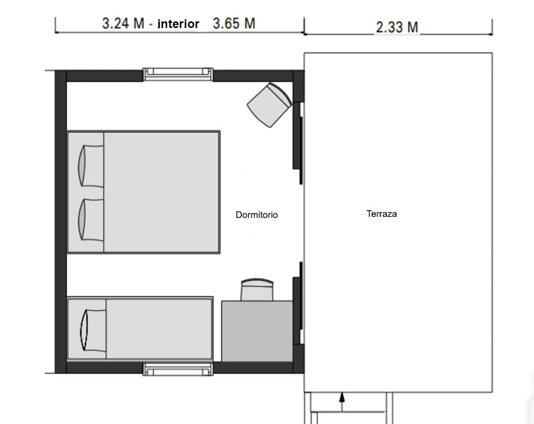
Plano de la cabaña clase4: optimización del espacio (9m² + terraza)


 cabaña maupiti resumen de puntos importantes